sanierte 3 RWE mit moderner EBK & Balkon im Stadtzentrum

Beschreibung

3-Raum-Wohnung mit Balkon und neuer moderner EBK
in Zittau-Innenstadt mit großem Wohnzimmer

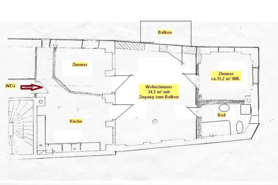
Lage/Größe: Zittau, Innere Weberstraße, 1. OG, ca. 80 m²

Ausstattung der Wohnung:

- neue Gasetagenheizung mit Warmwasserbereitung
- neu gefliestes Bad mit Wanne, Handwaschbecken, moderner Badheizkörper, WC und WMA sowie Fenster
- große Wohnküche und Flur mit neuem Vinyllaminat
- Küche ist mit einer modernen hochwertigen EBK incl. Cerankochfeld, Backofen, Umlufthaube und
  Geschirrspüler ausgestattet
- großes Wohnzimmer ca. 34 m² mit Zugang zum Balkon
- Telefon- und TV-SAT– Anschluss vorhanden
- neuer Laminatfußboden in den Wohnräumen


Nebengelass: Dachboden zum Abstellen, Wäscheboden
Bezug: ab 01.07.2026 zu vermieten
Kaution: 2 Monatsmieten

Mietkonditionen:
KM 440,00 € + 130,00 € NK –VZ = 570,00 €/ mtl. zzgl. Heizkosten ca. 120,00 € /mtl. 


Alle Angaben wurden vom Eigentümer vorgegeben – Haftungsansprüche werden ausgeschlossen.
Unsere allgemeinen Geschäftsbedingungen sind Bestandteil dieses Angebotes.
Gern stehen wir Ihnen für weitere Fragen zur Verfügung.

Zurück zu anderen ausgewählten Suchergebnissen

Überblick

Adresse Zittau, Innenstadt

Bestimmung:   Vermietung  

Kategorie:   3-Raum-Wohnungen  

Objekt-Nummer: WA 861-19

Stadt: Zittau

Etage:   1.OG  

Wohnfläche: 80 m²

Bezugstermin: 01.07.2026

Anzahl Bäder: 1

Anzahl Schlafzimmer: 1

Kaltmiete: 440,00 €

Warmmiete: 635,00 €

Heizkosten - VZ: 120,00 €

Nebenkosten - VZ: 130,00 €

Kaution:   zwei Monatsmieten  

Besucheranzahl: 2680

 Druckversion

Ausstattungsmerkmale

  • true  Balkon
  • true  TV-SAT-Anschluß
  • true  Telefonanschluß
  • true  Einbauküche
  • true  Wechselsprechanlage
  • true  Hausmeister
    Komplettservice

Immobilien Adresse

Bildergalerie



Überblick

Adresse Zittau, Innenstadt

Bestimmung:   Vermietung  

Kategorie:   3-Raum-Wohnungen  

Objekt-Nummer: WA 861-19

Stadt: Zittau

Etage:   1.OG  

Wohnfläche: 80 m²

Bezugstermin: 01.07.2026

Anzahl Bäder: 1

Anzahl Schlafzimmer: 1

Kaltmiete: 440,00 €

Warmmiete: 635,00 €

Heizkosten - VZ: 120,00 €

Nebenkosten - VZ: 130,00 €

Kaution:   zwei Monatsmieten  

Besucheranzahl: 2680

 Druckversion

Anfrage von


 

 

TRI-Immobilien Inh. Cornelia Marter
Markt 5 im 1.OG | 02763 Zittau

+49 (0)3583 - 51 23 21 | +49 (0)170 - 20 33 452
+49 (0)3583 - 79 50 23
info@immobilien-marter.de